
一、一般术语
滚动直线导轨副:由直线导轨、滑块滚动体、返向器、保持架和密封装置等组成,可用作直线运动导向和支承的部件。
直线导轨:横截面具有特定形状,有一条或多条纵向滚道供滑块运动的导轨(注:导轨上有安装孔)。
滑块:具有数条纵向滚道和相应数量循环通道及安装孔的元件。
滚动体:在滑块与直线导轨之间作循环往复运动的滚珠或滚柱。
返向器:滑块体两端实现滚动体换向的元件。
滚道:在直线导轨和滑块体上供滚动体运动并传递负荷的轨道。
密封装置:在滑块体上具有密封作用的元件。
二、滚动直线导轨副几何参数
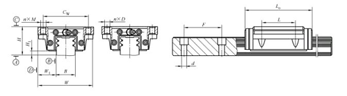
导轨副几何参数如图2-12所示。

图2-12导轨副几何参数符号示意图
基准侧面:直线导轨和滑块上用作安装基准的侧面。
滑块名义长度Lo:滑块两个理论端面之间的距离。
滑块名义宽度W:滑块两个理论侧面之间的距离。
滑块与直线导轨的基准侧面之间的名义距离W1:滑块理论基准侧面与直线导轨理论基准侧面之间的距离。
滑块与直线导轨基准侧面之间的实际距离W1.:滑块实际基准侧面上的一点,与通过该点且垂直于直线导轨基准侧面的直线与直线导轨实际基准侧面相切的平面的交点之间的距离。
滑块与直线导轨基准侧面之间的实际距离的偏差4w1:滑块和直线导轨的两个实际基准侧面的距离与两个名义基准侧面的距离之间的差值。
滑块与直线导轨的基准侧面之间距离的变动量Vw1,:实际基准侧面的最大距离和最小距离之间的差值。
滚动直线导轨副的理论高度H:直线导轨的理论底面与滑块的理论顶面之间的距离。
滚动直线导轨副的实际高度H,:滑块实际顶面上一点,与通过该点且垂直于直线导轨底面的直线与直线导轨实际底面相切的平面的交点之间的距离。
滚动直线导轨副的实际高度偏差AH:滚动直线导轨副的实际高度与理论高度之间的差值。
滚动直线导轨副的实际高度变动量Va:滚动直线导轨副的实际高度的最大值和最小值之间的差值。
滚动直线导轨的理论宽度B:直线导轨的两个理论侧面之间的距离。
滑块与直线导轨的底面之间的名义高度H;直线导轨的理论底面和滑块底面之间的距离。
滑块安装孔的横向中心距离C,滑块上沿直线导轨副的相对运动方向的垂直方向上的安装孔之间的距离。
滑块安装孔的纵向中心距离L:滑块上沿直线导轨副的相对运动方向上的安装孔之间的距离。直线导轨安装孔的中心距离F:导软上沿直线导轨副的相对运动方向上的安装孔之间的距离滑块的位移:在力的作用下,滑块相对于直线导轨沿导轨方向上产生的位移。
角位移:在转距作用下,滑块在空间产生的转动量,如图2-13所示。

图2-13 角位移及转短承意图
重直方向运动平行度:滚动直线导轨副的滑块顶面的一个固定
点在直线导轨的纵向不同位置上的高度最大值与最小值之间的差值
为重直方向上的运动平行度。
水平方向运动平行度;演动直线导轨副的滑块基准侧面的一个
固定点在直线导轨的纵向不同位置上,到直线导轨基准侧面的距离
的最大值与最小值之间的差值为水平方向的运动平行度
名义接触角a:滚动直线导轨副的受载方向与其浪道传递给滚动体的名义合力作用线之间的夹角,如图2-14所示。

图2-14名义接触角
